
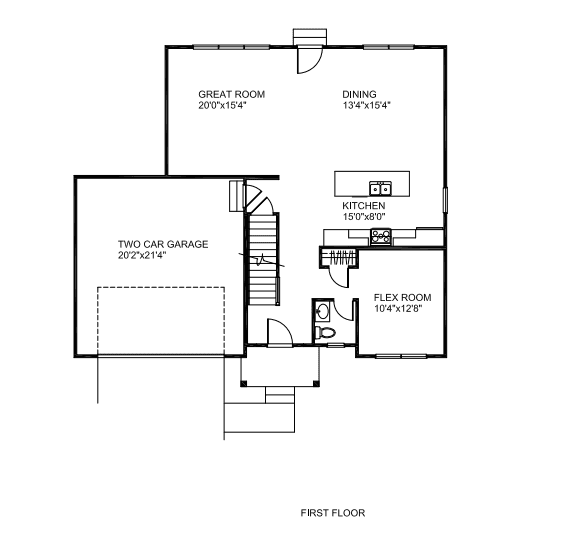
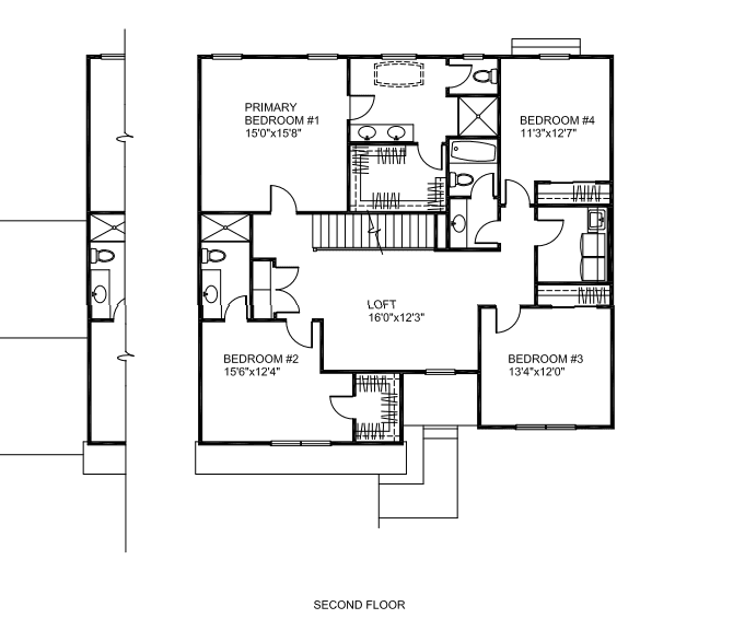
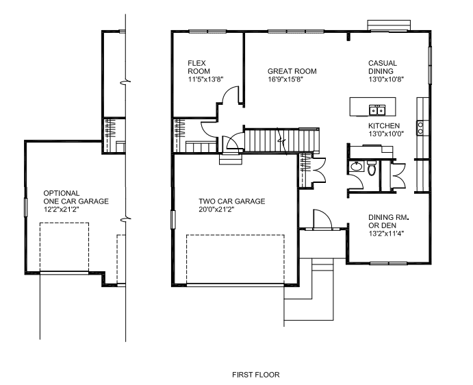
Customizable Home Plans
PLANS
What Makes It Different
Located within the established Winterbrooke Place community in Lewis Center, Ohio, The Reserve offers a limited collection of homesites reserved exclusively for fully custom homes -intentionally designed for greater privacy.
architectural flexibility, and an elevated building experience.
Flexibility Emphasis
Modify layouts, square footage, or ceiling heights
Add specialty spaces or custom rooms
Reconfigure kitchens, living areas, or bedroom arrangements
Design an entirely new plan from scratch
*An Arlington Builders custom home build in The Reserve at Winterbrooke place includes an attached indoor sports court — a perfect example of how we collaborate to bring unique ideas to life.































